Woonoppervlakte
Circa 153 m²
Perceeloppervlakte
Circa 288 m²
Bouwjaar
Gebouwd in 2025
Aantal kamers
3 kamers (2 slaapkamers)

Gouvernante 61

6603 MA, Wijchen (Gelderland)

Wilt u niet wachten, maar wél profiteren van alle voordelen van een nieuwbouwwoning? Deze royale twee-onder-een-kapwoning met garage en eigen oprit is onlangs opgeleverd en biedt u de kans om de eerste bewoner te worden. De woning is onder meer voorzien van een warmtepomp, triple glas, vloerverwarming én -koeling op alle verdiepingen, en heeft een uitstekend energielabel A+++. Dankzij de doordachte indeling, een luxe woonkeuken met kookeiland en een royale zolderverdieping met uitbreidingsmogelijkheden, biedt deze woning volop comfort en ruimte. De afwerking van vloeren, wanden en tuin is aan u – een unieke kans om direct te betrekken én geheel naar eigen wens in te richten.

De wijk Huurlingsedam kenmerkt zich door een ruimtelijke opzet, brede groenstroken en diverse speelvoorzieningen, wat zorgt voor een bijzonder kindvriendelijke leefomgeving. In de directe nabijheid bevinden zich onder meer een basisschool, een kinderdagverblijf en het verlengde van het Wijchens Meer – ideaal voor een wandeling of ontspanning aan het water. Ook het centrum van Wijchen, het NS-station, sportvoorzieningen, winkels en middelbare scholen zijn binnen enkele minuten bereikbaar. Bovendien is de wijk gunstig gelegen ten opzichte van de A50 en A73, en bereikt u via de Graafseweg eenvoudig het centrum van Nijmegen.

Bijzonderheden:
- Energielabel A+++
- Voorzien van een bodemwarmtepomp en triple-glas
- Vloerverwarming én -koeling op alle verdiepingen
- Voorzien van een luxe keukenopstelling met kookeiland, Quooker en geïntegreerde afzuiging
- Ruime en lichte woonkeuken met grote raampartijen
- Lichte woonkamer met dubbele tuindeuren naar de achtertuin
- Grote zolderruimte met uitbreidingsmogelijkheden (extra kamer of dakkapel)
- Aangebouwde stenen garage en parkeren op eigen terrein mogelijk
- Royale achtertuin
- Vrij gelegen aan zowel de voor- als zijkant
- Nabij scholen, sportvoorzieningen en het centrum van Wijchen

Indeling
Begane grond
U betreedt de woning via de entree met trapopgang, diepe trapkast, een garderobenis, het royale toilet met comfort touch en een fonteintje en de meterkast. Vanuit de hal leidt een moderne glazen binnendeur naar de tuingerichte woonkamer. Dankzij de grote ramen en dubbele openslaande tuindeuren geniet u hier van veel daglicht en een fijne verbinding met buiten.
Aan de voorzijde van de woning bevindt zich de woonkeuken. De ruimte is opvallend licht door de grote raampartijen en vormt het hart van het huis. Hier is alle ruimte voor een royale eettafel om samen met familie en vrienden te dineren. Voor de kookliefhebber is er een stijlvol kookeiland voorzien van een inductiekookplaat met geïntegreerde afzuiging, een RVS-spoelbak met Quooker, een vaatwasser en veel kastruimte rondom. In de keukenwand vindt u daarnaast een koelkast, vriezer, combimagnetron en een ideale plek voor een koffiecorner. Een praktische keuken met volop werk- en opbergruimte.

Eerste verdieping
Overloop met toegang tot twee zeer royale slaapkamers. De slaapkamer aan de voorzijde beschikt over een charmant Frans balkon en biedt veel privacy dankzij het vrije uitzicht. De slaapkamer aan de achterzijde kijkt uit over het naastgelegen groene gebied en is eveneens ruim van opzet. De badkamer is royaal van formaat en uitgerust met een inloopdouche, toilet, wastafel, vloerverwarming en een elektrische handdoekradiator. Boven de wastafel is een lichtpunt aanwezig – ideaal voor het plaatsen van een spiegel met verlichting.

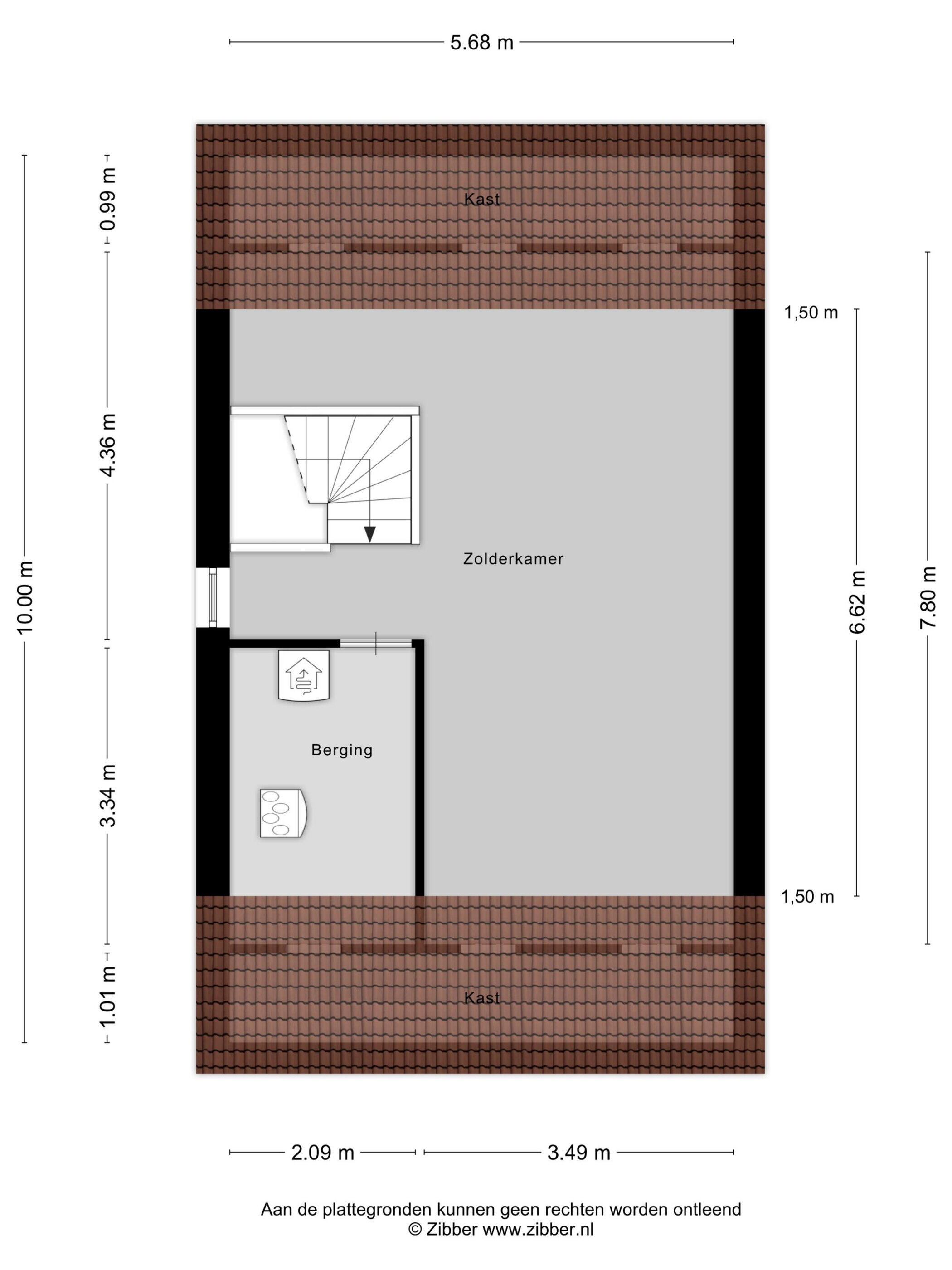
Tweede verdieping
De zolderverdieping biedt volop mogelijkheden. Momenteel is dit een grote open ruimte, maar met relatief eenvoudige aanpassingen is hier een extra slaapkamer te realiseren. Ook uitbreiding met bijvoorbeeld dakramen of een dakkapel behoren tot de opties. Op deze verdieping bevindt zich tevens de technische ruimte met onder meer de WTW-installatie en aansluitingen voor wasmachine en droger.

Garage en tuin
De aangebouwde stenen garage is uitgebouwd, dit zorgt voor extra ruimte en maakt de garage uitermate geschikt als bergruimte voor bijvoorbeeld fietsen en tuingereedschap of als hobbyruimte. Aan de achtergevel bevindt zich een buitenkraan – praktisch bij het tuinieren of het schoonmaken van het terras.
De tuin is royaal van opzet en biedt alle ruimte voor het realiseren van een sfeervol terras, een overkapping en groen.

Algemeen:
- Bouwjaar: 2025
- Woonoppervlakte: 153 m²
- Inhoud: 644 m³
- Perceeloppervlakte: 288 m²
- De lijst van zaken is niet van toepassing; de woning wordt geleverd zoals getoond tijdens de bezichtiging.

Plattegronden

Overdracht

Vraagprijs
€ 650.000 k.k.
Status
Verkocht
Aanvaarding
In overleg

Bouw

Object type
Eengezinswoning, 2 onder 1 kapwoning
Soort bouw
Bestaande bouw
Bouwjaar
2025
Soort dak
Zadeldak bedekt met pannen

Oppervlakte en inhoud

Woonoppervlakte
153 m²
Perceeloppervlakte
288 m²
Inhoud
644 m³
Overige inpandige ruimte
21 m²

Indeling

Aantal kamers
3 kamers (2 slaapkamers)
Aantal badkamers
1 badkamer
Badkamervoorzieningen
Toilet, wastafel, inloopdouche
Aantal woonlagen
3 woonlagen
Voorzieningen
Mechanische ventilatie, frans balkon, glasvezel kabel, balansventilatie

Energie

Energielabel
A+++
Energielabel registratie
18-06-2025
Isolatie
Volledig geïsoleerd, driedubbel glas
Verwarming
Vloerverwarming geheel, warmtepomp

Buitenruimte

Ligging
Aan rustige weg, in woonwijk
Tuin
Achtertuin, voortuin
Afmetingen achtertuin
121 m² (11.5 meter diep en 10.5 meter breed)
ligging tuin
Gelegen op het noordoosten en bereikbaar via achterom

Garage

Soort garage
Aangebouwd steen
Capaciteit
1 auto
Voorzieningen
Elektra

Parkeergelegenheid

Soort parkeergelegenheid
Op eigen terrein

Indicatie hypotheeklasten

Eigen inleg:
Spaargeld / overwaarde

Rente:
Laagste 10-jaars rente

Laagste 10-jaars rente

2,85% - Centraal Beheer Groen... - NHG


3,08% - Centraal Beheer Groen... - 80%

Laagste 20-jaars rente

3,29% - Centraal Beheer Groen... - NHG


3,52% - Centraal Beheer Groen... - 80%

Laagste 30-jaars rente

3,41% - Centraal Beheer Groen... - NHG


3,74% - Centraal Beheer Groen... - 80%


Hypotheek:

Bruto maandlasten: € 0 p/m

Netto maandlasten: € 0 p/m

Hoe berekenen we dit?

Het rentepercentage is gebaseerd op de laagste 10 jaars vaste rente voor één hypotheekdeel. De vermelde rente (3.08% zonder NHG) is gecontroleerd op 03-02-2026. Deze berekening is gebaseerd op een annuïteitenhypotheek die volledig wordt afgelost, waarbij de maandlasten gedurende de gehele looptijd gelijk blijven. De werkelijke rente en netto maandlasten kunnen variëren, afhankelijk van uw persoonlijke situatie en de hypotheekverstrekker. Raadpleeg een financieel adviseur voor een nauwkeurige berekening en advies. Aan deze berekening kunnen geen rechten worden ontleend; het dient enkel als indicatie.

Documentatie

Zonnegrenzen bekijken

Op de kaart

Inwoners in Wijchen

Cijfers voor postcodegebied 6603

Totaal aantal inwoners
36260 inwoners
Mannen
49%
Vrouwen
51%

Inwoners in Wijchen

Cijfers voor postcodegebied 6603

tot 15 jaar
12%
15 tot 25 jaar
13%
25 tot 35 jaar
19%
45 tot 65 jaar
34%
65 en ouder
21.7%

Huishoudens in Wijchen

Cijfers voor postcodegebied 6603

Eenpersoons zonder kinderen
27%
Meerpersoons zonder kinderen
32%
Huishoudens zonder kinderen
59%

Huishoudens in Wijchen

Cijfers voor postcodegebied 6603

Huishoudens met één kind
20%
Huishoudens met meerdere kinderen
21%
Huishoudens met kinderen
41%

Woningen in Wijchen

Cijfers voor postcodegebied 6603

Woningen voor 1945
12%
Woningen tussen 1945 en 1965
11%
Woningen tussen 1965 en 1975
13%
Woningen tussen 1975 en 1985
17%
Woningen tussen 1985 en 1995
6%

Woningen in Wijchen

Cijfers voor postcodegebied 6603

Woningen tussen 1995 en 2005
6%
Woningen tussen 2005 en 2015
27%
Woningen na 2015
9%
Huurwoningen
40%
Koopwoningen
60%

Overige in Wijchen

Cijfers voor postcodegebied 6603

Gemiddelde WOZ waarde
€ 309.000,-
Personen onder de 65 met uitkering
Niet beschikbaar

Overige in Wijchen

Cijfers voor postcodegebied 6603

Adressen per km²
509
Stedelijkheid (schaal 1 op 5)
40%
Postcode kaart 6603 Gemeente kaart wijchen

Korte feiten over Wijchen

Wijchen is de hoofdplaats van de gemeente Wijchen in de Nederlandse provincie Gelderland. De plaats is met 36.625 inwoners (op 1 januari 2021) de grootste in de gelijknamige gemeente van bijna 41.000 inwoners. Wijchen ligt aan de zuidgrens van Gelderland, tegen Noord-Brabant aan.

Indien u vragen heeft of u wilt een bezichtiging inplannen, dan kunt u gebruik maken van het formulier hiernaast. Er zal daarna op korte termijn contact met u worden opgenomen.

Al 40 jaar uw huismakelaar

Ondernemende makelaar met ambitie

U wilt een huis kopen, verkopen of laten taxeren. Het liefst schakelt u een betrouwbare makelaar in bij u in de buurt. Maar hoe vindt u precies de makelaar die het best bij u past? Het aanbod is al zo groot.

Driessen Makelaardij maakt uw keuze een stuk gemakkelijker. Hoe? Allereerst zijn we al veertig jaar een begrip in de regio. Met een kantoor in Wijchen en in Nijmegen kennen wij de lokale huizenmarkt op ons duimpje. En niet onbelangrijk: de huizenmarkt kent ons. ‘Want vaak is de eerste stap van een woningzoeker de stap naar ons kantoor.’ Hierdoor weten wij vraag en aanbod snel bij elkaar te brengen en perfect in te spelen op de wensen van klanten en potentiële klanten. Bovendien zijn we aangesloten bij de NVM, de grootste brancheorganisatie in de makelaardij. Onze mensen zijn dus uitstekend in staat het hele aan- en verkooptraject van begin tot eind professioneel te begeleiden.

Uw ambitie is onze ambitie. Dat wil zeggen: u verwacht van ons dat we tot het uiterste gaan u die kwaliteit te bieden waarom we al zo lang bekend staan. Daar mag u ons aan houden!

Al 40 jaar uw huismakelaar
Reviews Driessen Makelaardij

Gouvernante 61, Wijchen

€ 650.000 k.k. - Verkocht

Helaas, deze woning is verkocht!

Net te laat, deze woning is al verkocht. Laat een zoekopdracht bij ons achter zodat wij u direct kunnen helpen wanneer er nieuw aanbod beschikbaar komt.